- Yield Exceeds 9% of Bottom Guide Price
This terraced property is Grade II Listed and prominently located towards the top of the town's bustling High Street. Halstead is situated some 23 miles from Stansted Airport with Braintree, Sudbury and Colchester some 7,8 & 13 miles distant respectively.
The property comprises two self contained lock up retail units with full width facias together with extensive , independently accessed upper parts arranged on first floor and attic levels.
7 High Street
Approximately 428 sq.ft and a florists of some years standing trading as Fleur de Lys. A new 7 year less 1 day lease from November 2017 has been agreed at £5,000 pa plus insurance with an upward only review in 2019
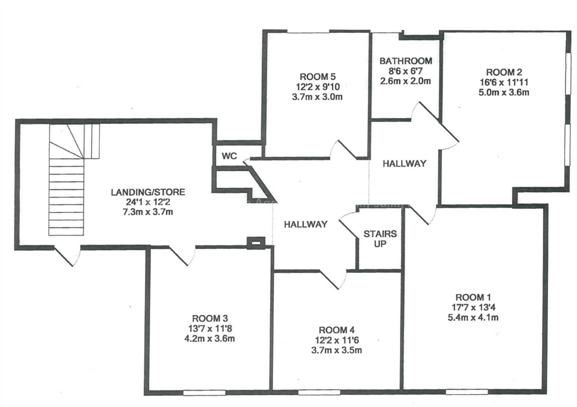
7A High Street
Accessed independently from the High Street and comprises vacant first floor offices of approximately 872 sq.ft plus attic rooms. Existing fittings suggest that these may previously have been utilised for residential premises.
9-11 High Street
Extends to approximately 1575 sq.ft , a convenience store trading as Costcutter. This is held on a 15 year lease from June 2014 with a current rent of £12,000 pa plus insurance with 4 yearly upward only reviews.
With an existing yield exceeding 9% of the bottom Guide Price, we believe this to be a strong investment proposition.
Viewing
By appointment with the Auctioneers and at the courtesy of the tenants. Tel: 01206 589280
Notice
Please note we have not tested any apparatus, fixtures, fittings, or services. Interested parties must undertake their own investigation into the working order of these items. All measurements are approximate and photographs provided for guidance only.
Bright logic Estates
| Utility |
Supply Type |
| Electric |
Unknown |
| Gas |
Unknown |
| Water |
Unknown |
| Sewerage |
Unknown |
| Broadband |
Unknown |
| Telephone |
Unknown |
| Other Items |
Description |
| Heating |
Not Specified |
| Garden/Outside Space |
No |
| Parking |
No |
| Garage |
No |
| Broadband Coverage |
Highest Available Download Speed |
Highest Available Upload Speed |
| Standard |
15 Mbps |
1 Mbps |
| Superfast |
50 Mbps |
8 Mbps |
| Ultrafast |
Not Available |
Not Available |
| Mobile Coverage |
Indoor Voice |
Indoor Data |
Outdoor Voice |
Outdoor Data |
| EE |
Enhanced |
Enhanced |
Enhanced |
Enhanced |
| Three |
Enhanced |
Enhanced |
Enhanced |
Enhanced |
| O2 |
Enhanced |
Enhanced |
Enhanced |
Enhanced |
| Vodafone |
Likely |
Likely |
Enhanced |
Enhanced |
Broadband and Mobile coverage information supplied by Ofcom.